Guia Obra

Engº Rafael Cruz

Engenharia
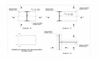
Cálculo de Estruturas metálicas e de Concreto Armado: Mezaninos, Sobrados, Escolas, Projetos Comerciais, Fundações, Escadas todo dimensionamento e detalhamento de projetos.

Contato

Horário de funcionamento:

Fechado agora
Terça-feira - 08:00 às 18:00  Ver mais
Segunda-feira - 09:00 às 18:00
Terça-feira - 08:00 às 18:00

Quarta-feira - 08:00 às 18:00

Quinta-feira - 08:00 às 18:00

Sexta-feira - 08:00 às 18:00

Sábado - 08:00 às 18:00

Avaliação da empresa

Atendimento

Preço

Qualidade

Ofertas

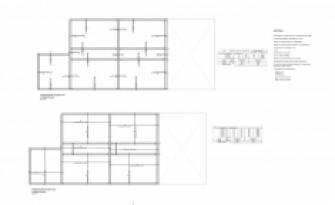
Projeto Estrutural

Projetos
Mediante orçamento
0

Fotos